T: 0118 927 2424 | E: info@archprof.co.uk
Fabrications and Flashings
Custom profiles, flashings and gutters


APL offer a full fabrication service producing bull-nose perimeter details, gutters and flashings.
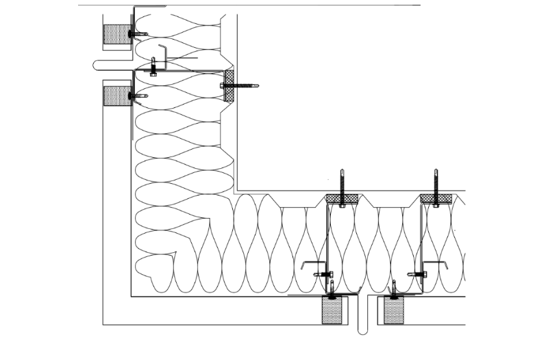
We fabricate a wide range of bespoke pressed flashings and fabrications to complement any corner feature, junction/interfaces, windows - flush or recessed and doors on commercial, educational, leisure and health projects. Our pressed flashings can be used in both insulated and non-insulated assemblies in a wide range of finishes, colours, depths and sizes to suit any individual need. Alternatively factory mitre corners in a range of our profiles can be provided as another option to compliment the project's look.
Fabrications are available in aluminium, steel, and Cor-ten and can be supplied in a wide choice of finishes and colours. Steel coatings include Plastisol, PVF2 and PUF finishes, with aluminium available in PVF2, PUF and PPC.
Joint, corner and reveal flashings are produced in styles to suit project/customer requirements.
Key Benefits
Please contact us for more information.
Click to download our Quick Reference Fin and Flashings System Summary



GEX/F2 Cruciform Corner
GE/F1 Fin
G.E Mitre Corner
Mitre Corners



Architectural Profiles Limited, 53b Crockhamwell Road, Woodley, Reading, Berkshire, RG5 3JP
www.archprof.co.uk | email: info@archprof.co.uk | telephone: 0118 927 2424 | fax: 0118 927 2400
View the APL Terms & Conditions of Sale & Contract of Supply
Due to current market conditions, products and supporting information may be withdrawn without notice but still shown as being available on the website.
Reg No: 1640903 - Reg Office: 53 Crockhamwell Road, Woodley, RG5 3JP.
